Vous êtes ici :
Accueil
Produits
7. Portiques
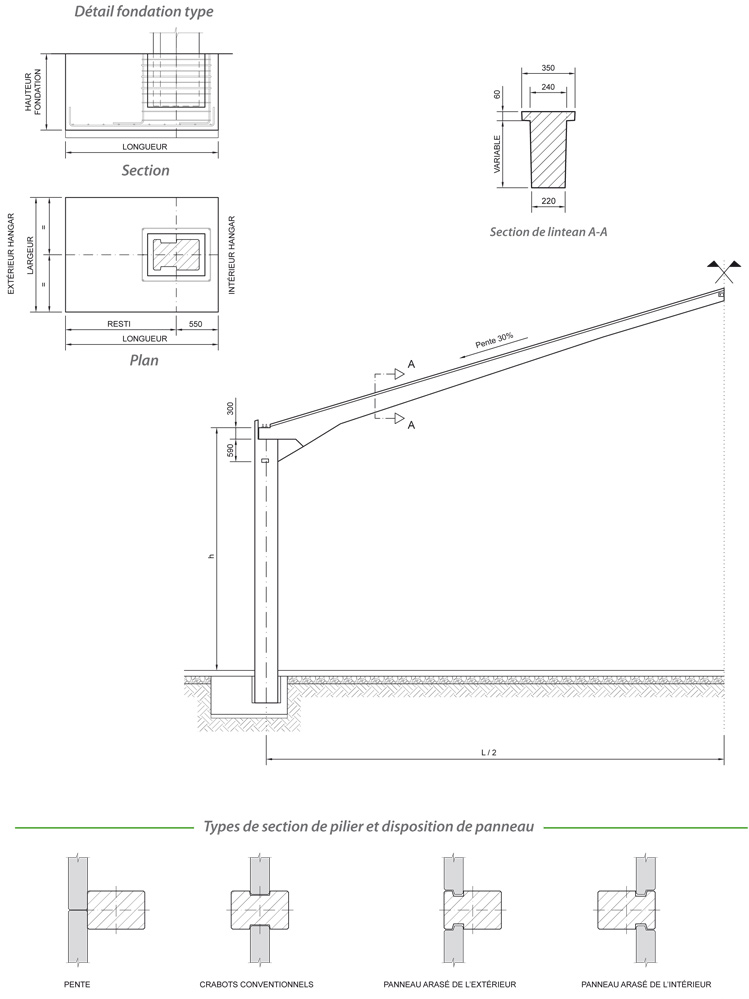
7.1.2. Portiques agroindustriels AI
Sélectionnez votre langue
Espace clients
Accueil
Société
Qualité
Produits
Chantiers
Décharges
Actualité
Contact
1. Piliers
2. Poutres maîtresses
3. Hourdis
4. Poutres de couverture
5. Éléments de couverture
6. Système Ipsilon
7. Portiques
8. Panneaux préfabriqués
9. Réservoirs
7.1.1. Portiques agroindustriels AI
7.1.3. Portiques agroindustriels AI
7.1.2. Portiques agroindustriels AI
Call for price
Description
Búsqueda
Accueil
Société
Qualité
Produits
Chantiers
Décharges
Actualité
Contact